Descripción
Legato™
Este inodoro de una pieza y diseño llamativo es transicional y tiene un estilo simple con una taza alargada moderna y nuestro sistema de descarga Tornado (ver Dato útil abajo). Fácil de instalar. Altura universal.
- Sistema de descarga TORNADO FLUSH®
- Especialmente diseñado para recibir un asiento inteligente WASHLET®+
- El vidriado CEFIONTECT® previene la adherencia de residuos a las superficies cerámicas, lo que facilita la limpieza
- 360° de diseño completamente bordeado
- Cumple con la ADA (vea la hoja de datos técnicos)
- Altura universal
- Decorativo y llamativo inodoro de una pieza
- Peso 53.97 kg
- Taza de frente alargado con asiento SoftClose®
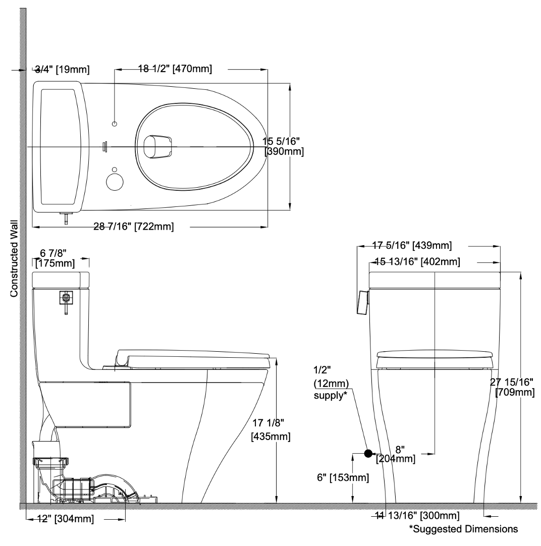
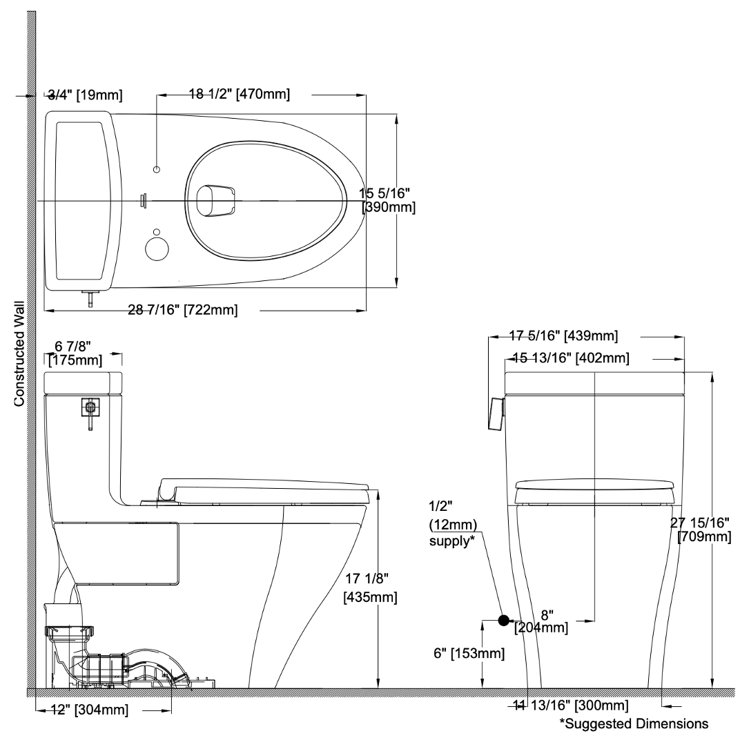
- Montaje de 12"
- Palanca de descarga cromada incluida
COMPRAS PROGRAMADAS
Consúltanos ya que puedes realizar tu pedido con un anticipo y liquidarlo previo a la entrega.







